コンテンツへスキップ

ITOプロジェクト

サザンクロスリゾート地域在 保養所改修・再生
  • ホーム
議事録

MTG

Posted on 2022年9月5日 / 0件のコメント

出席者:田口、石河(Daylight)、新井(QAI)、市川(QAI)
@APPLE富ヶ谷 office

  • 建築設計監理業務委託と委託料について
    見積書(調整前 参考見積)
    見積書(調整後)
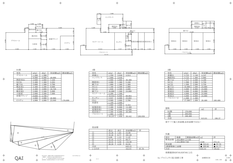
  • 施工面積算定図
    建物施工面積:615.01㎡ (登記上の延べ床面積:474.72㎡)
    外構施工面積:645.53㎡ (敷地面積:1238㎡)

資料共有

物件資料

Posted on 2021年7月1日 / 0件のコメント

住所:静岡県伊東市吉田字ショフデ1012-97~99

  • サザンクロス規約
  • 登記情報
  • 竣工時申請図
  • 現状図(株式会社ミサワホーム静岡作成)

投稿のページ送り

« 前へ 1 2
  1. 工事監理報告 に 石河利恒 より2023年3月17日

    確認しました

  2. MTG に 石河利恒 より2023年1月26日

    有難うございます。 確認いたしました。

2026年4月
月 火 水 木 金 土 日
 12345
6789101112
13141516171819
20212223242526
27282930  
« 5月